辽2007j804图集是辽宁地区中小学建筑配件建设的参照图集,由辽宁省教育建筑设计院编制。本图集介绍了多种建筑配件的做法,图文搭配,内容详尽,赶快下载学习吧!
辽2007j804图集介绍
适用范围
本图集编制内容适用于一般城镇及农村中小学建筑工程,特殊教育学校除外。
本图集供建筑工程设计、建设、施工、监理、验收人员使用。
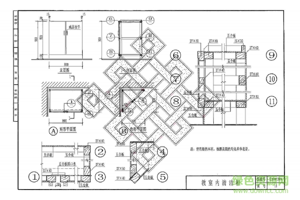
辽2007j804图集样张



辽2007j804图集是辽宁地区中小学建筑配件建设的参照图集,由辽宁省教育建筑设计院编制。本图集介绍了多种建筑配件的做法,图文搭配,内容详尽,赶快下载学习吧!
适用范围
本图集编制内容适用于一般城镇及农村中小学建筑工程,特殊教育学校除外。
本图集供建筑工程设计、建设、施工、监理、验收人员使用。


