2006浙g30图集是浙江地区建造烧结多孔砖房屋结构构造的参照图集。本图集主要分为四个部分,介绍了多种构造结构、质量要求、防裂措施等内容。快来绿色资源网下载吧!
2006浙g30图集介绍
编制内容
第一部分:烧结多孔砖的规格和主要技术指标、烧结多孔砖砌体施工质量要求
第二部分:非抗震地区房屋结构构造
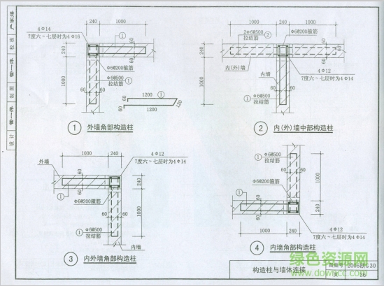
第三部分:抗震地区房屋结构构造
地四部分:防止或减轻墙体开裂的主要措施
适用范围
本图集适用于浙江省非抗震设防地区和抗震设防烈度为6度、7度地区,楼盖和屋盖均采用钢筋混凝土现浇梁板,以P型烧结多孔砖砌体承重的多层砖混结构房屋。
2006浙g30图集样张


