浙j18 95图集是浙江地区室外工程建设的参照标准图集,由浙江省舟山是建筑设计院编制。本图集介绍了台阶、人行道、垃圾井、室外爬梯等工程的做法。快来下载学习吧!
浙j18 95图集介绍
本图集适用于一般民用建筑和工业建筑。
本图集中所注尺寸标高以米为单位,其余均以毫米为单位。
本图集外饰面做法(材料、颜色选择、构造)除图中注明者外,均由设计者根据具体工程自行确定。
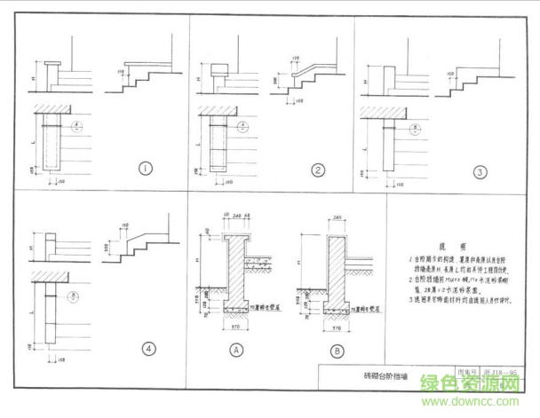
浙j18 95图集样张



浙j18 95图集是浙江地区室外工程建设的参照标准图集,由浙江省舟山是建筑设计院编制。本图集介绍了台阶、人行道、垃圾井、室外爬梯等工程的做法。快来下载学习吧!
本图集适用于一般民用建筑和工业建筑。
本图集中所注尺寸标高以米为单位,其余均以毫米为单位。
本图集外饰面做法(材料、颜色选择、构造)除图中注明者外,均由设计者根据具体工程自行确定。


