中南标11zj903图集介绍了六大类型的外遮阳系统,包括了详细的安装和施工要求,以及构造示意图,是中南地区建造建筑物外遮阳的参照标准图集。有需要的,快来下载吧!
11zj903图集介绍
适用范围
适用于中南地区新建、扩建及既有建筑改造的民用、工业建筑。
设计内容
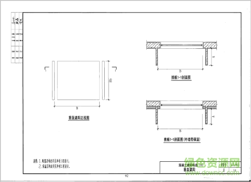
本图集编制了六类外遮阳系统的多种遮阳形式,包括混凝土遮阳、卷帘遮阳、织物卷帘遮阳、百叶帘遮阳、铝合金机翼遮阳和铝合金格栅遮阳。
11zj903图集样张



中南标11zj903图集介绍了六大类型的外遮阳系统,包括了详细的安装和施工要求,以及构造示意图,是中南地区建造建筑物外遮阳的参照标准图集。有需要的,快来下载吧!
适用范围
适用于中南地区新建、扩建及既有建筑改造的民用、工业建筑。
设计内容
本图集编制了六类外遮阳系统的多种遮阳形式,包括混凝土遮阳、卷帘遮阳、织物卷帘遮阳、百叶帘遮阳、铝合金机翼遮阳和铝合金格栅遮阳。


