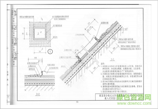
10zj109图集详细介绍了太阳能热水器的原理、安装、技术参数等内容,是中南地区建造太阳能热水系统与建筑一体化构造的参照图集。有需要的朋友,快来绿色资源网下载吧!
10zj109图集介绍
适用范围
本图集适用于新建、既有建筑的扩建和改建民用建筑太阳能热水系统的设计与安装。
编制内容
本图集主要内容包括:太阳能集热器安装在建筑物上典型的平、立面布置图,热水器安装构造详图、太阳能热水器原理、系统图,太阳能热水器技术参数选用表等。
10zj109图集样张



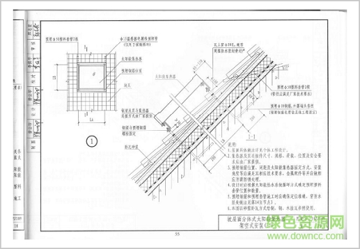
10zj109图集详细介绍了太阳能热水器的原理、安装、技术参数等内容,是中南地区建造太阳能热水系统与建筑一体化构造的参照图集。有需要的朋友,快来绿色资源网下载吧!
适用范围
本图集适用于新建、既有建筑的扩建和改建民用建筑太阳能热水系统的设计与安装。
编制内容
本图集主要内容包括:太阳能集热器安装在建筑物上典型的平、立面布置图,热水器安装构造详图、太阳能热水器原理、系统图,太阳能热水器技术参数选用表等。


