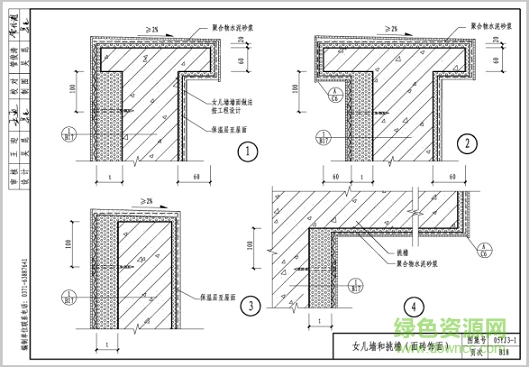
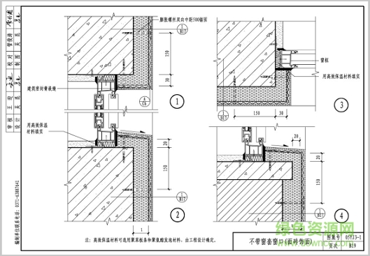
05yj3 1图集是河南省建筑外墙外保温构造的参照标准图集,主要介绍了A型、B型、C型、D型等多种型号的外墙外保温构造,有需要的,快来下载吧!
05yj3 1图集介绍
本图集适用于河南省寒冷地区及夏热冬冷地区新建、扩建和改建的公共建筑及居住建筑以及既有建筑节能改造时的外围护结构外保温,其他民用与工业建筑可参考使用。
05yj3 1图集样张



05yj3 1图集是河南省建筑外墙外保温构造的参照标准图集,主要介绍了A型、B型、C型、D型等多种型号的外墙外保温构造,有需要的,快来下载吧!
本图集适用于河南省寒冷地区及夏热冬冷地区新建、扩建和改建的公共建筑及居住建筑以及既有建筑节能改造时的外围护结构外保温,其他民用与工业建筑可参考使用。


