苏j12 2005图集是江苏地区室内装饰木门建造的参照图集。本图集介绍了多种室内门,还有五金配置、装饰木线详图等内容。快来绿色资源网下载学习吧!
苏j12 2005图集介绍
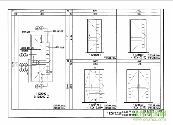
本图集适用于民用建筑和工业建筑中有装饰要求的室内门。
本图集装饰木门为板料实芯们,类型有平开门、百页平开门、带玻平开门、带玻地弹簧门、折叠门、带玻折叠门、百页折叠门、内藏式移门、带玻移门等。
苏j12 2005图集样张



苏j12 2005图集是江苏地区室内装饰木门建造的参照图集。本图集介绍了多种室内门,还有五金配置、装饰木线详图等内容。快来绿色资源网下载学习吧!
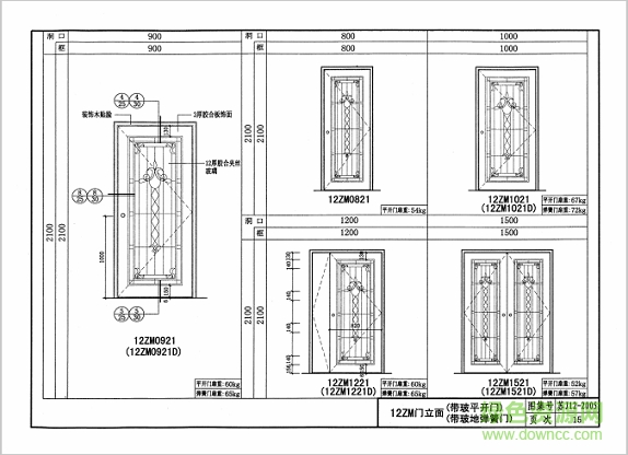
本图集适用于民用建筑和工业建筑中有装饰要求的室内门。
本图集装饰木门为板料实芯们,类型有平开门、百页平开门、带玻平开门、带玻地弹簧门、折叠门、带玻折叠门、百页折叠门、内藏式移门、带玻移门等。


