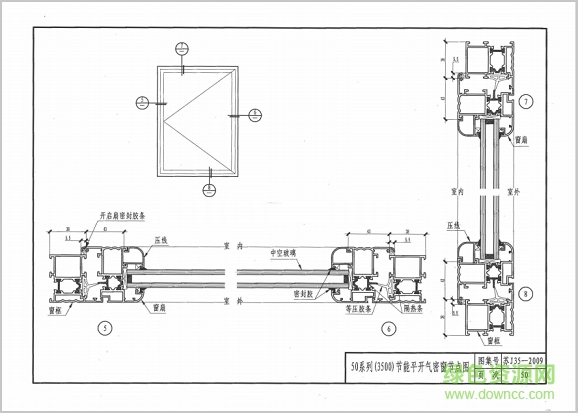
苏j35 2009图集介绍了各种类型门窗的立面图和安装节点图,以及多种系列的气密窗等内容,是江苏地图建造铝合金节能门窗的参照图集。快来绿色资源网下载学习吧!
苏j35 2009图集介绍
本图集适用于民用建筑外墙用门窗工程,工业建筑用门窗工程可参照使用。所列门窗规格不能满足工程设计需求时可另行设计。对有防腐蚀要求的建筑物应慎重采用。高层建筑禁止采用外平开窗和滑轴平开窗,选用上悬窗时开启角度不大于30°。
本图集立面图中未注明分格尺寸者均为等分。立面图一律由外向内立视,表示方法为:固定窗无开启线,外开启为细实线,内开启为细虚线,推拉用箭头表示。
苏j35 2009图集样张


