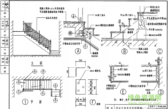
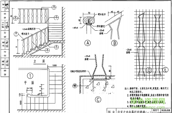
陕09j08图集是有关楼梯、栏杆和栏板的图集,适用于陕西地区的民用建筑,是陕西省09系统建筑图集之一。很多平台在找本图集,绿色资源网特地为大家找到了pdf版,快来下载吧!
陕09j08图集内容
本图集包括室内楼梯、辅助楼梯、室外楼梯和屋顶上人梯等,内容以一般民用建筑为主,同时也编入一些用于中、高级民用建筑装修标准所需的内容,如车木栏杆、金属铁艺栏杆、玻璃栏板等。
陕09j08图集样张



陕09j08图集是有关楼梯、栏杆和栏板的图集,适用于陕西地区的民用建筑,是陕西省09系统建筑图集之一。很多平台在找本图集,绿色资源网特地为大家找到了pdf版,快来下载吧!
本图集包括室内楼梯、辅助楼梯、室外楼梯和屋顶上人梯等,内容以一般民用建筑为主,同时也编入一些用于中、高级民用建筑装修标准所需的内容,如车木栏杆、金属铁艺栏杆、玻璃栏板等。


