西南08j107图集是西南地区公共建筑技能构造的标准图集,西南地区所有公共建筑的节能构造设计都须参照本图集标准。有需要的朋友,快来绿色资源网下载吧!
西南08j107图集介绍
适用范围
本图集适用于新疆、改建、扩建的公共建筑。
本图集适用于有节能要求的钢筋混凝土强、混凝土砌块、烧结页岩普通砖、烧结页岩多孔砖、烧结空心砖、蒸压加气混凝土、轻质墙板等材料构成的外墙保温隔热工程,以及屋面和地面的保温隔热。
图集内容
本图集主要涉及西南地区夏热冬冷、夏热冬暖和寒冷气候区公共建筑围护结构外墙部分的保温隔热构造和热工性能,建筑围护结构及其构造做法按国家及地区相关标准图进行设计。
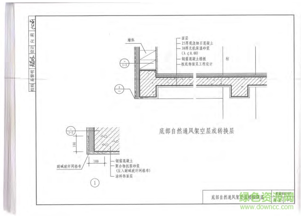
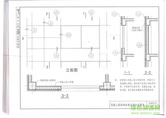
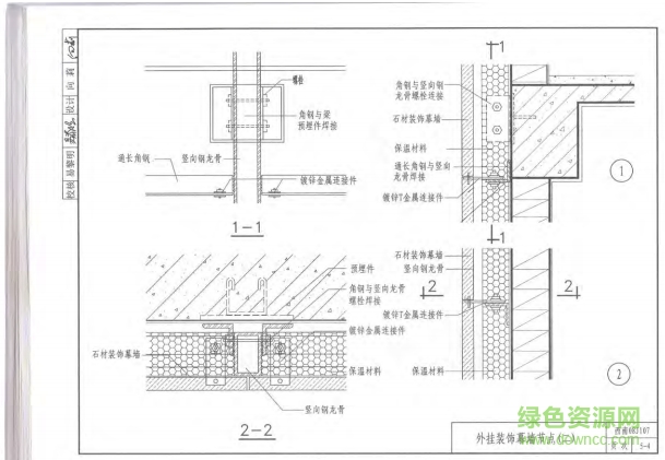
西南08j107图集样张


